Asset 11: Vacant Parcel of Commercial Land of 3.75 Acres located at Bandar Meru Raya, Ipoh, Perak



Brief Description  
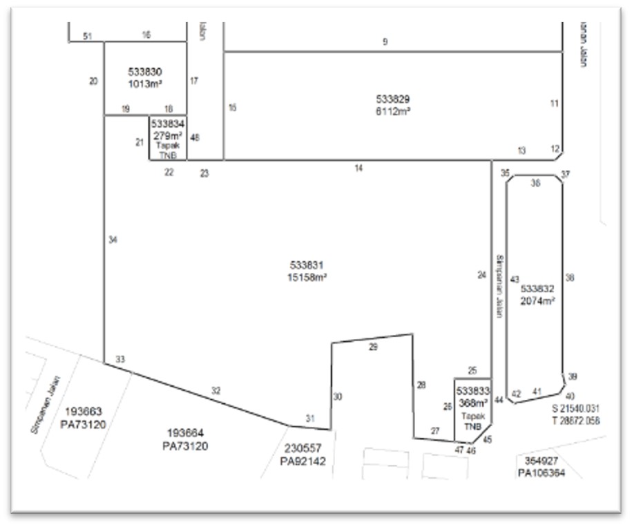
The parcel of vacant commercial land is irregular in shape. It encompassed a land area of 15,158 square metres (approx. 3.75 acres) and has a frontage of about 124.69 metres onto unnamed metalled road. Generally, the site is flat in terrain and lies at about same level as the surrounding lands. The boundaries of the land are not demarcated by any form of fences. 
________________________________________________________________________
Location  
Bandar Meru Raya,Perak
________________________________________________________________________
Area  
Land area is approximately 15,158 sq. metres / 3.75 Acres